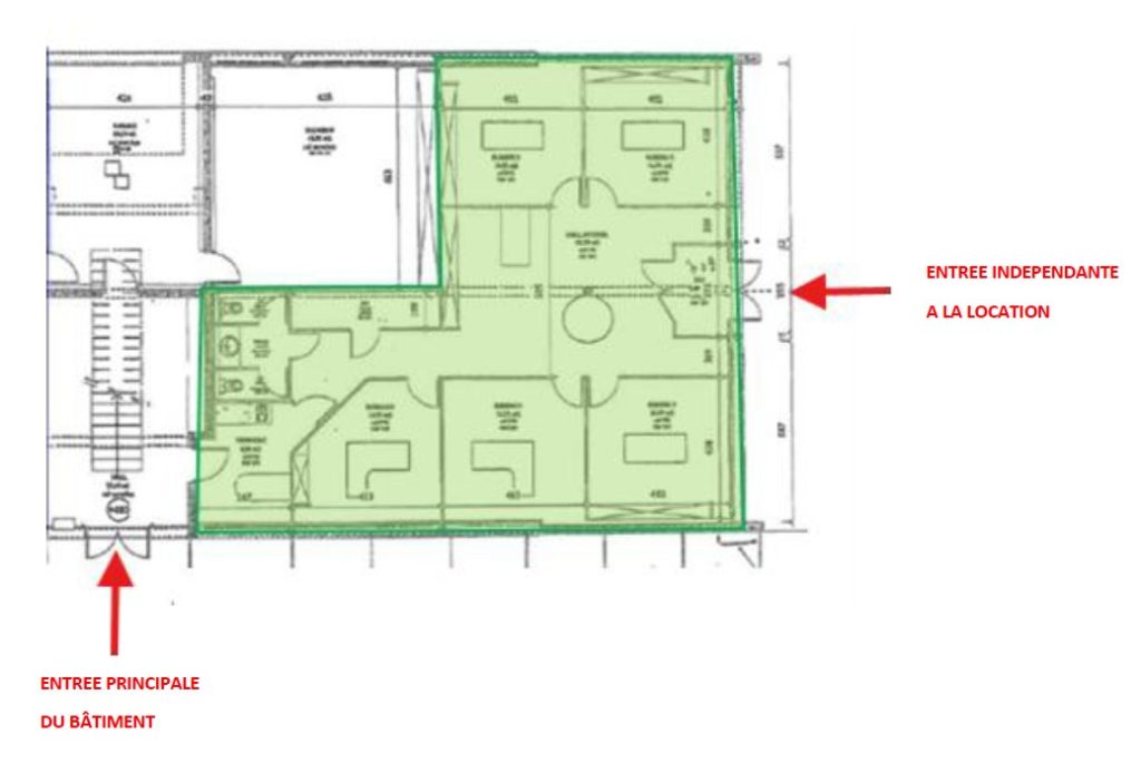
Situés en rez-de-chaussée dans un bâtiment récent, ces locaux professionnels offrent de beaux espaces pour une surface totale d’environ 150 m², idéale pour une activité tertiaire ou administrative.
Les locaux comprennent :
- 5 bureaux lumineux
- Un grand espace accueil / réception
- Une entrée indépendante
- Un espace cuisine
- Des sanitaires
Bureaux fonctionnels avec rangements, facilement accessibles et offrant un cadre de travail agréable.
Possibilité de disposer de quelques places de stationnement et d’une salle de réunion mutualisée (capacité de 16 personnes)
👉 Pour toute information complémentaire ou pour effectuer une visite, veuillez adresser un mail à contact@atd88.fr ou contacter le 06.11.74.28.14

Plan des Locaux

Entrée indépendante

Bureaux

Cuisine











